Planta de Casa Terreno 10x30 metros Térreo

 Planta Humanizada 

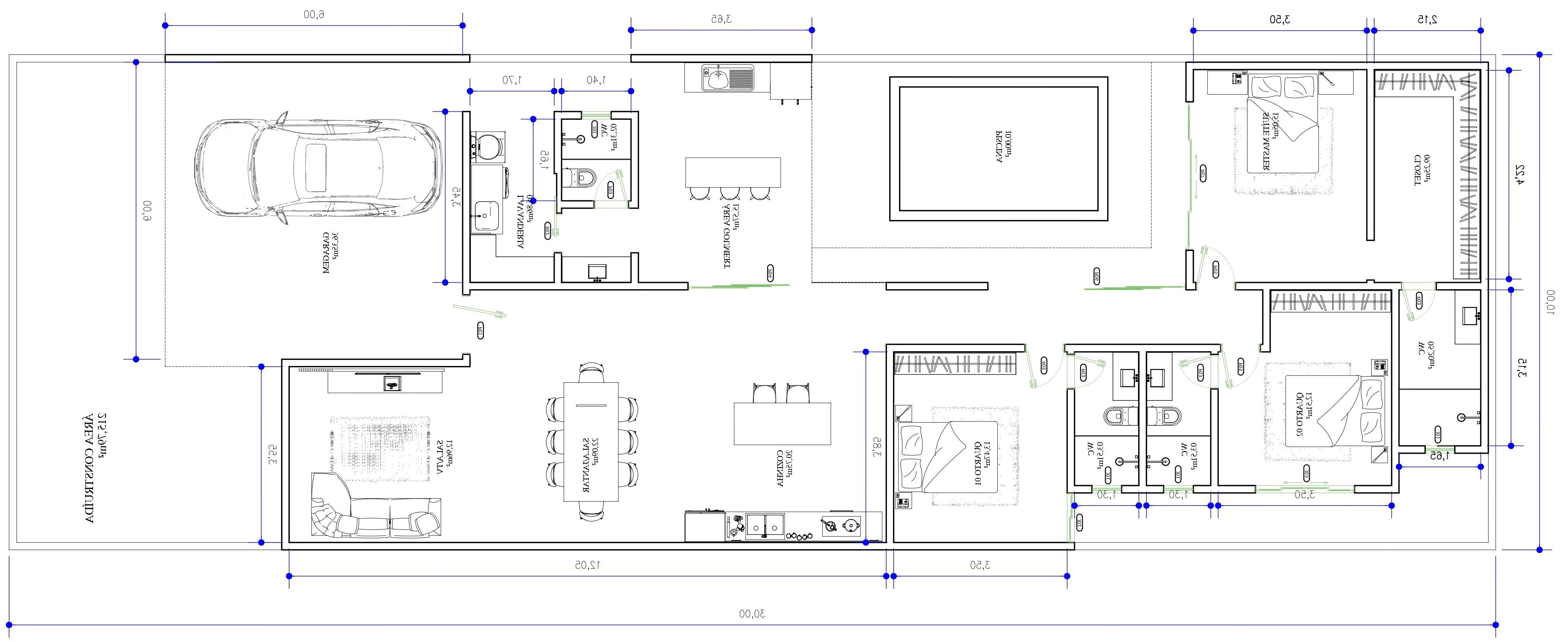
Planta com Medidas

Informações Técnicas
  • Área construída: 215,79 metros quadrados
  • Largura da casa: 10 metros
  • Comprimento da casa: 27 metros
  • Largura do terreno: 10 metros ou maior
  • Comprimento do terreno: 30 metros ou maior
  • Quartos: 3
  • Suites: 3
  • Banheiros: 4
  • Garagem: 2 vagas
  • Recuo frontal: 5,35 metro(s)
  • Recuo do fundo: 0 metro(s)
  • Recuo lado esquerdo: 0 metro(s)
  • Recuo lado direito: 0 metro(s)
Vídeo